Description
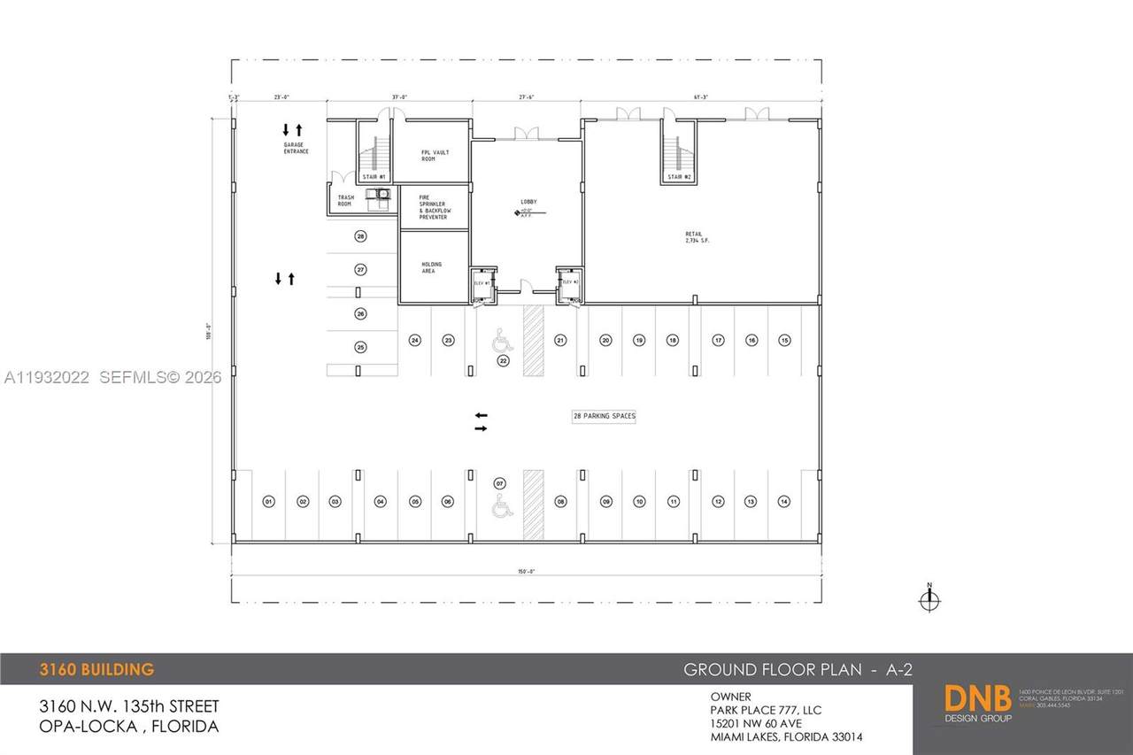
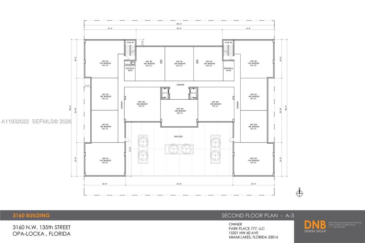
Redevelopment and Income Generating Opportunity in Opa-Locka. This offering comprises three adjacent lots totaling 20,750 sq. ft. with 150 linear feet of frontage along NW 135th Street and 32nd Avenue in the City of Opa-Locka. One parcel features a 4-unit building with new roof as of 9/2025, currently leased to month-to-month tenants at below-market rents, generating approximately $60,000 in annual gross income. The other two parcels are vacant, providing significant development potential alone or adding the adjacent building's lot. Located within Opa-Locka’s mixed-use corridor, the property benefits from as-of-right zoning that permits up to 71 residential units across 8 stories for market-rate tenancy. The site is within walking distance of the Amazon distribution center and public transit stops, adding strong appeal for future residents. Preliminary site plans have been prepared for both a 69-unit/80 parking space development and a smaller 28-unit/30 parking space project, offering flexibility for investors and developers. The property also qualifies for other commercial and retail zoning applications, creating additional opportunities for mixed-use development. Discussions with city officials have already taken place, and they are enthusiastic about welcoming a strong project to the area. Incentives may be available to support development.
-
0BEDS
-
0.48ACRES
-
0BATHS
-
01/2 BATHS
School Ratings & Info
Description
Redevelopment and Income Generating Opportunity in Opa-Locka. This offering comprises three adjacent lots totaling 20,750 sq. ft. with 150 linear feet of frontage along NW 135th Street and 32nd Avenue in the City of Opa-Locka. One parcel features a 4-unit building with new roof as of 9/2025, currently leased to month-to-month tenants at below-market rents, generating approximately $60,000 in annual gross income. The other two parcels are vacant, providing significant development potential alone or adding the adjacent building's lot. Located within Opa-Locka’s mixed-use corridor, the property benefits from as-of-right zoning that permits up to 71 residential units across 8 stories for market-rate tenancy. The site is within walking distance of the Amazon distribution center and public transit stops, adding strong appeal for future residents. Preliminary site plans have been prepared for both a 69-unit/80 parking space development and a smaller 28-unit/30 parking space project, offering flexibility for investors and developers. The property also qualifies for other commercial and retail zoning applications, creating additional opportunities for mixed-use development. Discussions with city officials have already taken place, and they are enthusiastic about welcoming a strong project to the area. Incentives may be available to support development.
Copyright 2026, Participating Associations/MLS’s in the SEFMLS, MIAMI Association of REALTORS, Realtor Association of Greater Ft. Lauderdale, South Broward Board of Realtors. All rights reserved. The data relating to real estate for sale on this web site comes in part from the participating Associations/MLS’s in the Southeast Florida Regional Multiple Listing Service cooperative agreement, MIAMI Association of REALTORS, Realtor Association of Greater Ft. Lauderdale, South Broward Board of Realtors. The information being provided is for consumers' personal, non-commercial use and may not be used for any purpose other than to identify prospective properties consumers may be interested in purchasing. Information is deemed reliable but not guaranteed. Copyright 2026, Participating Associations/MLS’s in the SEFMLS, MIAMI Association of REALTORS, Realtor Association of Greater Ft. Lauderdale, South Broward Board of Realtors. All rights reserved. Use of search facilities of data on the site, other than a consumer looking to purchase real estate, is prohibited. Data last updated 2026-01-16T23:50:56.973.
